The Property
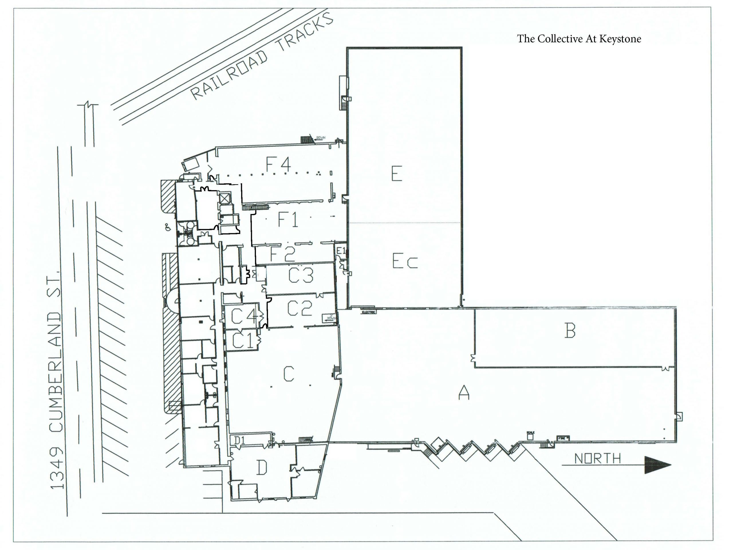
The Collective At Keystone
1349 Cumberland Street – From wide open industrial spaces to beautiful lounge space and private office suites, we provide the space so you can focus on your work.
One of Lebanon’s Largest & Premier Landmark Properties!


